Optimiser l’usage des appuis de fenêtre extérieurs – avec le volet roulant adapté
Comparatif et atouts spécifiques du volet roulant intégré au précadre ALPAC
La position et le sens d’enroulement d’un volet roulant influent directement sur l’accessibilité et les possibilités d’utilisation de l’appui de fenêtre extérieur. En rénovation, notamment, trois options distinctes sont envisageables. À leur impact sur l’appui s’ajoutent des avantages ou des inconvénients annexes. Faire le bon choix est d’autant plus important.
En préalable, il est utile de clarifier la terminologie, car elle peut prêter à confusion :
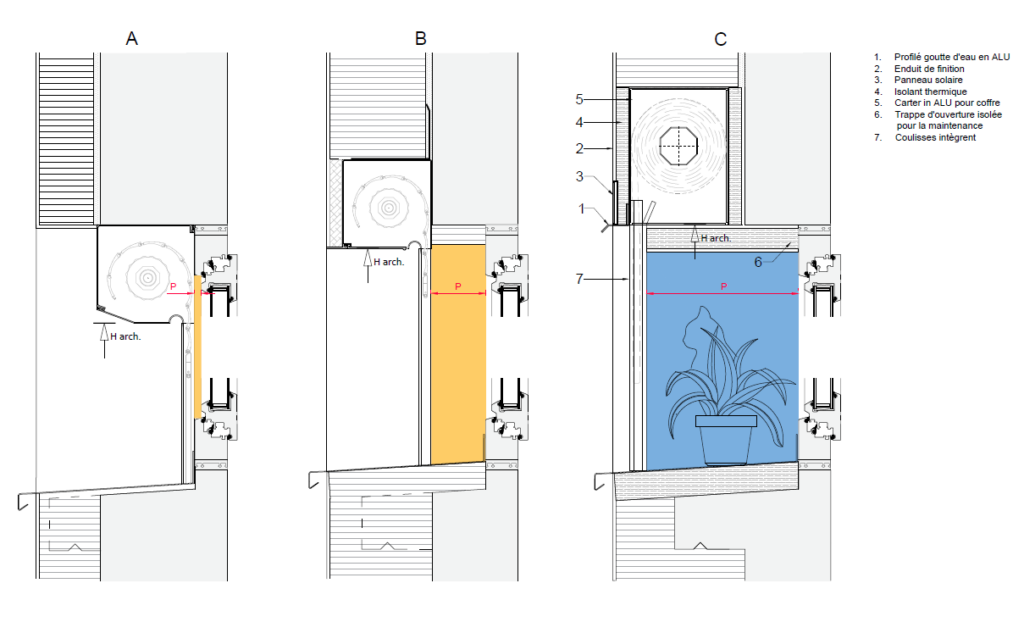
- Par volet roulant à enroulement extérieur, on entend un volet qui s’enroule vers le côté extérieur de l’habitation, tandis que les lames du volet se déplacent vers le haut ou le bas du côté intérieur, dans l’espace situé directement devant la menuiserie (voir schémas A et B en coupe verticale).
- Un volet roulant à enroulement intérieur, en revanche, se distingue par son sens d’enroulement vers l’intérieur de l’habitation. Les lames du volet, quant à elles, sont situées du côté extérieur du bâtiment : dans le cas de la solution ALPAC, le décalage est très réduit entre la position des coulisses et le nu extérieur de la façade (voir schéma C en coupe verticale).
À noter : lors d’une réhabilitation thermique en ITE (Isolation Thermique par l’Extérieur), la mise en place de l’enveloppe isolante augmente sensiblement la profondeur de l’appui de fenêtre extérieur. Cela entraîne l’installation de nouveaux appuis sur mesure. La préférence va souvent à des appuis en aluminium. Leur épaisseur minime permet d’inclure en sous-face une isolation thermique ne dépassant pas la hauteur du dormant. De plus, ces appuis sont proposés en diverses finitions standard ou personnalisées, et leur maintenance est minimale.

Coffre de volet roulant installé sous le linteau existant (A)
Cette option conventionnelle multiplie les inconvénients majeurs : emprise sur le clair de vitrage qui assombrit le volume habitable, ponts thermiques importants, esthétique discutable et supplément de coût pour la finition du coffre, celui-ci restant visible à l’issue du chantier. Comme l’enroulement des lames s’effectue vers l’extérieur, celles-ci sont positionnées à proximité immédiate de la fenêtre. Cette position présente trois inconvénients supplémentaires :
- L’aspect n’est pas optimal. En position fermée, c’est la face plate des lames qui est visible de l’extérieur (toute lame de volet roulant est bombée sur une face et plate sur l’autre, pour assurer un enroulement compact autour de l’axe du mécanisme ; on considère généralement que la face bombée est plus esthétique).
- La surface utile de l’appui est certes préservée, mais elle n’est pas protégée lorsque le volet est fermé.
- L’épaisseur de la lame d’air entre le volet en position fermée et la menuiserie étant minimale, la performance thermique de la baie est affectée négativement.
Coffre de volet roulant installé en applique sur la façade existante (B)
Le coffre est positionné en applique dans l’épaisseur du manteau isolant et équipé d’un volet roulant à enroulement extérieur. Deux inconvénients – en termes d’aspect et d’isolation – rejoignent le cas précédent ; à l’esthétique suboptimale en position fermée s’ajoute une capacité isolante médiocre, même si la lame d’air est plus importante.
Mais surtout, le volet en position fermée coupe en deux la profondeur de l’appui (voir schéma B). Cela limite très fortement les possibilités d’utilisation de l’appui, par ex. pour le fleurissement de la façade.
Coffre de volet roulant intégré au précadre thermo-isolé ALPAC (C)
Ici, le coffre est partie intégrante d’un précadre préfabriqué en usine. Celui-ci est installé en applique sur l’ancienne façade. Il est dimensionné sur mesure en fonction des cotes de l’ouverture et de l’épaisseur de l’ITE. Le coffre abrite un volet roulant à enroulement intérieur. L’écart est faible entre le plan de déplacement des lames du volet vers le haut ou le bas et l’extérieur de la façade. Il en résulte quatre avantages :
- La profondeur utile du nouvel appui de fenêtre extérieur est maximisée. C’est idéal pour disposer sur l’appui des plantes ornementales ou des objets décoratifs (voir schéma C).
- Les plantes sont protégées, le cas échéant, par le volet en position fermée.
- La position du volet roulant offre toute latitude d’installation d’un système d’éclairage, par ex. sous le linteau, et d’accessoires tels que moustiquaire, garde-corps, etc.
- L’esthétique est optimale, puisque la face bombée des lames est située vers l’extérieur, tandis que le faible retrait des volets par rapport au nu extérieur de la façade crée un effet d’une sobriété flatteuse en position fermée.
- La lame d’air située entre le volet et la menuiserie gagne fortement en épaisseur. À condition que le volet roulant soit fermé, cela contribuera à la performance thermique durant la saison froide. L’épaisseur de la lame d’air répond aux exigences de performance définies par les règles Th-U, fascicule 4, du CSTB. Sur la base du △R calculé selon la norme NF EN13125, c’est là un aspect important. En effet, l’efficacité énergétique du système (△R > 0,22 m².K/W) rendra l’installation du volet roulant éligible à la TVA au taux réduit de 5,5 %.
Volet roulant intégré au précadre ALPAC : le choix gagnant en toute logique
Par rapport aux solutions conventionnelles, le volet roulant à enroulement intérieur proposé par ALPAC conjugue plusieurs avantages distinctifs.
Partie intégrante du précadre thermo-isolé, il optimise l’utilisation du nouvel appui extérieur installé lors de la rénovation énergétique. La position du volet cumule en outre divers atouts supplémentaires sur le plan esthétique et énergétique.
La lame d’air importante contribuera notamment à faire la différence, en renforçant la résistance thermique du volet roulant proprement dit et en diminuant la perméabilité à l’air de la baie.
Sur le plan général, il importe de s’orienter très en amont vers un système d’occultation non seulement bien conçu et capable de minimiser le coefficient U, mais également à même d’offrir un maximum d’avantages complémentaires. Des lames de volet roulant positionnées à proximité immédiate du nu extérieur de la façade isolée conjugueront une esthétique sobre et contemporaine avec un gain de performance thermique significatif. À son tour, celui-ci ouvrira droit à une TVA à taux réduit.
Apprenez plus sur les coffres de volets roulants intégrés et sur la supériorité du principe tout-en-un des précadres ALPAC thermo-isolés par rapport aux autres possibilités, inscrivez-vous à l’Espace PRO.